NEW

庚午北ビル

16.5万円(0.66万円/坪)

管理 / 共益費 11,000円

広島県広島市西区庚午北4丁目

広島電鉄宮島線「高須」駅徒歩5分

山陽本線「西広島」駅徒歩21分

賃料 / 坪単価
16.5万円 / 0.66万円
敷金(保証金)
6ヶ月(-)
所在地
広島県広島市西区庚午北4丁目
交通

広島電鉄宮島線高須」駅 徒歩5分

山陽本線西広島」駅 徒歩21分

管理 / 共益費
11,000円
礼金
1ヶ月
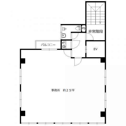
建物面積
25.00坪(82.64㎡)
築年月
1990年1月(築36年)

セールスポイント

広島銀行庚午支店が歩いて396mのところにあります。周辺には、徒歩5分で利用できる駅があります。賃料は16.5万円です。駅が周辺に2つあるので行動範囲が広がります。初期費用として礼金は1ヶ月分かかります。

ポイント

礼金1ヶ月 2沿線利用可 専有面積25坪以上 2駅利用可 駅徒歩5分以内

担当者のコメント

佐野 浩二

こだわりポイント満載の庚午北ビル。広島銀行庚午支店が歩いて396mのところにあります。周辺には、徒歩5分で利用できる駅があります。賃料は16.5万円です。周辺に駅が二つあり、交通の利便性が高いです。礼金1ヵ月分が初期費用に含まれます。

基本情報

保証金
-
敷引 / 償却
- / -
建物面積
82.64㎡
所在階 / 階建て
5階 / 7階建
建物構造
鉄筋コンクリート
築年月
1990年1月(築36年)
種別
事務所
契約期間
3年
保証会社 / 料金
必加入 / その他
要確認
要確認
現況
賃貸中
入居可能時期
相談
取引条件の
有効期限
2026年04月28日

設備条件

設備条件
  • 事務所可 / トイレ共同

その他

賃貸区分
一般
保険会社 / 料金
有  / -
取引態様
一般媒介
物件番号
91380002
情報更新日
2026年04月14日
次回更新予定日
2026年04月28日
取扱会社
  • (株)IEYASU不動産
  • 広島県広島市西区庚午北3丁目1-2 
  • TEL:082-275-5100
  • 広島県知事 (2) 第10908号
  • 公社)全日本不動産協会
備考
広島銀行庚午支店まで396mです。駅まで5分と、駅近でアクセスも良好な物件です。電車でのアクセスを快適なものにする、2駅利用可能な物件です。新しく開業したい方にオススメ、オフィスにもなる物件です。賃料16.5万円の物件です。初期費用として礼金は1ヶ月分かかります。

周辺施設

  • マックスバリュエクスプレス広島庚午店の画像

    スーパー

    マックスバリュエクスプレス広島庚午店

    130m(2分)

  • セブンイレブン 広島庚午北3丁目店の画像

    コンビニエンスストア

    セブンイレブン 広島庚午北3丁目店

    156m(2分)

  • ドコモショップ西広島店の画像

    その他

    ドコモショップ西広島店

    214m(3分)

  • 広島銀行庚午支店の画像

    銀行

    広島銀行庚午支店

    396m(5分)

  • 広島高須郵便局の画像

    郵便局

    広島高須郵便局

    408m(6分)

近隣の物件

  1. M&Bビル

    広島市西区中広町3丁目

    - (75.20㎡)

    22万円(0.97万円/坪)

  2. 南観音町ビル

    広島市西区南観音町

    - (130.44㎡)

    24.2万円(0.61万円/坪)

  3. クリエイトビル

    広島市西区己斐本町2丁目

    - (123.00㎡)

    53.2万円(1.43万円/坪)

  4. 中広セントラルビル

    広島市西区中広町3丁目

    - (33.05㎡)

    8.25万円(0.83万円/坪)

よく見られている物件

  1. 八丁堀GRIT

    広島市中区八丁堀

    - (66.97㎡)

    22万円

  2. 和光広島ビル

    広島市中区袋町

    - (40.85㎡)

    13.60万円

  3. ハイオス広島

    広島市中区上八丁堀

    - (13.32㎡)

    7.7万円

  4. 舟入本町ビル

    広島市中区舟入本町

    - (969.08㎡)

    137.5万円

庚午北ビル

庚午北ビル

16.5万円

11,000円

25.00坪(82.64㎡)

お気軽にお問い合わせください

LINEからお問い合わせ 無料お問い合わせ

(株)IEYASU不動産

082-275-5100

10:00~19:00

(休:なし)