NEW

浜田市旭町市木の中古一戸建

800万円

島根県浜田市旭町市木

山陰本線「浅利」駅徒歩413分

山陰本線「江津」駅徒歩418分

山陰本線「都野津」駅徒歩423分

価格
800万円
間取り
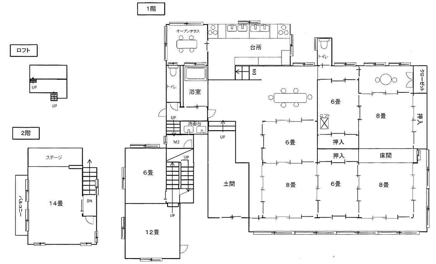
9LDK
土地面積
630.17㎡
所在地
島根県浜田市旭町市木
交通

山陰本線浅利」駅 徒歩413分

山陰本線江津」駅 徒歩418分

山陰本線都野津」駅 徒歩423分

建物面積
282.92㎡
築年月
1931年1月(築94年)

物件の特徴

  • バストイレ別

  • 浴室乾燥機

セールスポイント

島根県浜田市郊外のおしゃれな古民家。柱や桁は今では手に入らないほど荘厳な材質で造られており圧巻です。家具備品も立派で、室内にある家具類や骨董品は無償譲渡致します。以前はこちらの古民家を改築して創作料理店として利用されていました。母屋に接続して2階建て居宅を増築されているので、状態も良好です。スキー場も近くシーズンになると楽しみが増えます。

ポイント

エアコン 設備無償譲渡 店舗付住宅 テラス スクール向け

担当者のコメント

茅野 太志

楽器応相談、自宅で楽器を演奏したい方などにおすすめ。家族におすすめな9LDK。設備も充実しています。和室8畳以上あれば、茶道が好きな方にも嬉しい住空間です。価格は800万円です。新しいお住まいにいかがでしょうか。浜田市を中心に不動産情報を扱う当社でなら、きっと山陰本線浅利周辺の住まい探しにも役立つことでしょう。まずはご希望条件をお聞かせ下さい。

基本情報

販売戸数
-
総戸数
-
間取り / 詳細
9LDK
洋室 14.0帖/和室 12.0帖/和室 8.0帖/和室 8.0帖/和室 8.0帖/和室 6.0帖/和室 6.0帖/和室 6.0帖/和室 6.0帖/LDK 8.0帖
向き
建物面積(坪数)
282.92㎡(85.58坪)
土地面積(坪数)
630.17㎡(190.62坪)
建ぺい率 /
容積率
-/-
築年月
1931年1月(築94年)
駐車場 /
月額料金
有 0円
土地権利
所有権
土地
(敷金 / 保証金)
- / -
建物構造
木造 / 2階建
傾斜地部分面積
-
路地状敷地
-
私道負担面積
-
セットバック
高圧線下面積
-
施工会社
-
用途地域
-
地目 / 地勢
宅地 / -
接道状況
-
国土法届出要否
不要
都市計画
都市計画区域外
総区画数 /
販売区画数
-/-
現況
空家
その他
法令上の制限
-
取引態様
一般媒介
引渡し
相談
取引条件の
有効期限
2025年12月02日

設備条件

設備条件
  • 楽器相談 / 事務所可 / 飲食店可 / レトロ / 天井が高い / スクール向け / ファミリー向け / フローリング / 専用庭 / 公営水道 / バス・トイレ別 / 浴室乾燥機 / 洗面台 / エアコン
設備(その他)
    -

その他

物件番号
95327060
管理コード
-
建築確認番号
-
情報更新日
2025年11月18日
次回更新予定日
2025年12月02日
取扱会社
  • ホームメイト広島庚午店㈱IEYASU不動産
  • 広島県広島市西区庚午北3丁目1-2 
  • TEL:082-275-5100
  • 広島県知事 (2) 第10908号
  • 公社)全日本不動産協会
備考
9LDKの物件で、開放感のある生活を送る事が出来ます。幅広い方にご好評な800万円の物件での新生活。こちらの物件は中古戸建物件です。天井が高いので、圧迫感もありません。浜田市や山陰本線浅利付近でなら、お客様に合った一戸建てがきっと見つかります。まずはご希望条件をスタッフまでお伝え下さい。

周辺施設

  • 市木郵便局の画像

    郵便局

    市木郵便局

    1788m(23分)

支払いシミュレーション

月々の支払額
9.6
購入希望物件価格
万円
頭金
万円
金利
%
返済額(ボーナス1回分)
万円
返済期間

※ボーナスは自動で年2回分で計算されます。

浜田市旭町市木の中古一戸建

浜田市旭町市木の中古一戸建

800万円

-

9LDK(282.92㎡)

お気軽にお問い合わせください

LINEからお問い合わせ 無料お問い合わせ

ホームメイト広島庚午店㈱IEYASU不動産

082-275-5100

10:00~19:00

(休:なし)